Каталог
Усі міста
Назад
Не обрано
Не обрано
Не вказано
Не обрано
Не обрано
Не вказано
Не обрано
Не вказано
Не обрано
Не обрано
Не обрано
Не вказано
Не обрано
Не обрано
Не обрано
Не обрано

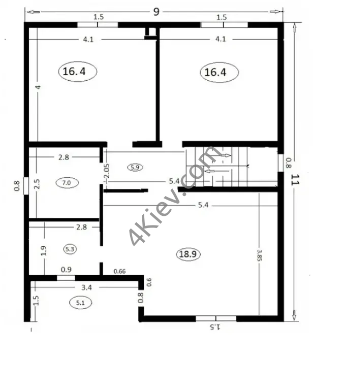
Будинок з керамоблоку від забудовника. Гореничі

6 місяців тому 129 (2 сьогодні) №1847510286

Розташування

Київська область, Гореничі

Опис

Будинок в Гореничах з КЕРАМОБЛОКУ від забудовника.
6 соток, рівна ділянка, гарна локація. Два повноцінних поверхи по 3,1м висотою, 150м.кв.
Побудований з якісних матеріалів.
Фундамент монолітний 140см висота з плитою 100мм.
Стіни: керамоблок 380мм,
утеплення пенопласт 100мм.
Дах металочерепиця.
Вікна енергозберігаючі REHAU 70 з ламінацією.
Стеля другого поверху підбита осб.
Утеплення між 2м поверхом та горищем 25см мінеральна вата.
Підлога на горищі з осб.
Бетонні сходи між поверхами. Бетонні перекриття.
Тераса.
Лівньовка виведена в окремий колодязь. Відсипана відмостка піском та щебенем. Зроблена розводка електрики, штукатурка.
Підлога першого поверху підготовлена для опалення, викладений утеплювач.
Велике горище, яке можна використовувати як кладову.
Електрика 20кв, скважина 96м.
Забор з профнастилу, відкатні ворота з автоматикою. септик з переливом. Асфальтованна вулиця, газ по вулиці, вивіз сміття. Тихе місце, гарна природа. Ліс та озера поруч. Є фото єтапів будівництва.
Готовий для початку ремонту. Приходьте на перегляд, відповім на ваші питання.

Характеристики

Тип будинку: Будинок
Електрика: Є
Площа будинку, м²: 150
Матеріал будинку: Блоковий
Санвузли: Декілька санвузлів
Поверхів: 2
Водопостачання: Автономне
Тип ділянки: Житлова забудова
Площа ділянки, сот.: 6
Опалення: Автономне
Хто розмістив: Власник
140 000 $

Оголошення з тієї ж категорії

Додому
Вибране
Додати
Чат
Профіль